

Nos Réalisations
Fluide designer a participé à la réalisation de plusieurs projets en Guyane (Cayenne, Matoury, Kourou ...)
PROJETS EN ARHITECTURE
Notre Bureau d'études réalise des relevés précis du bâti existant afin d’en restituer fidèlement les dimensions, volumes et contraintes techniques. Ces relevés servent de base fiable à l’ensemble des plans produits, qu’ils soient destinés à un dépôt en mairie ou à une utilisation technique. Une mesure rigoureuse permet d’éviter les incohérences et d’assurer la conformité des documents transmis.


Modélisation architecturale à partir d'un croquis fourni par le client, en vue de réaliser des démarches (rénovation, déclaration de travaux, étude de faisabilité) :
- analyse du dossier (éléments structurants...)
- relevé sur site avec prises photographiques
- modélisation d'un plan précis avec données réelles
Ce type de prestation permet de fiabiliser les données de départ indispensables dans des projets d'aménagement, de rénovation ou de régularisation de l'existant.


MAISON INDIVIDUELLE - MATOURY (GUYANE)
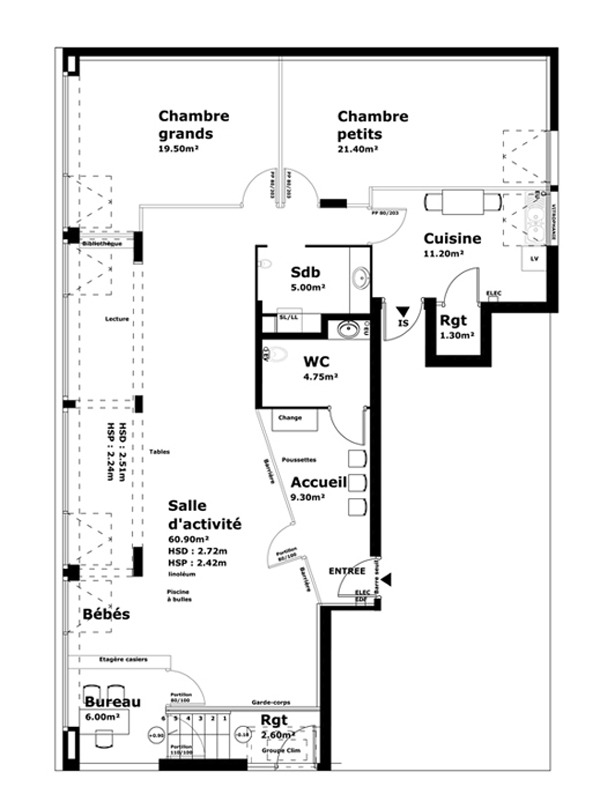
CRECHE - CAYENNE (GUYANE)
CRECHE - KOUROU (GUYANE)



